Auerk


Ein 30-Betten Haus mit eigenem See in Ostfriesland


Auerk

Ostfriesland, Deutschland
Verpflegungsmöglichkeiten:
  • Selbstversorgung
  • Halbpension
  • Vollpension
  • La faim® Gruppenverpflegung
Für bis zu 30 Personen
Wasserzugang:
  • Eigener Badesee
Highlights:
  • Terrasse

Objektreferenz: 00-49-0266


Details


Das Gruppenhaus Auerk liegt in ländlicher Umgebung mit ausgedehnte Moorgebieten, die teilweise unter Naturschutz stehen.

Das renovierte Selbstversorgerhaus besteht aus insgesamt sechs, in sich abgeschlossene, Ferienwohnungen verschiedener Größen und hat eine teilweise neu ausgestattete Einrichtung. Im Erdgeschoß findet sich der zentrale Gruppenbereich für das gemeinschaftliche Beisammensein. Es gibt eine halboffene, moderne und gut ausgestattete SV-Küche, einen Speiseraum mit dem gemütlichen Aufenthaltsbereich, sowie ein separates Billardzimmer mit Billardtisch. Weiterhin gibt es noch eine ca. 100 qm große so genannte „Spielscheune“, die von außen zu erreichen ist.

Erdgeschoss (barrierefrei)

JUIST, ca. 70 qm – 5 Personen
Wohnraum mit Küchenzeile
Badezimmer
Schlafzimmer mit Doppelbett
3-Bettzimmer mit Einzel- & Etagenbett
Terrasse

WANGEROOGE, ca. 67 qm – 5 Personen
Wohnraum mit Küchenzeile
Badezimmer
Schlafzimmer mit Doppelbett
3-Bettzimmer mit Einzel- & Etagenbett
Wintergarten
Terrasse

MEMMERT, ca. 54 qm – 4 Personen
Wohnraum mit Küchenzeile
Badezimmer
Schlafzimmer mit Doppelbett
2-Bettzimmer mit Etagenbett

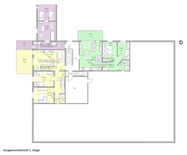
1te. Etage

BALTRUM, ca. 35 qm – 2 Personen
WohnzimmerKüche mit Essecke
Badezimmer
2-Bettzimmer mit Einzelbetten
Balkon

NORDERNEY, ca. 56 qm – 4 Personen
Wohnraum mit Küchenzeile
Badezimmer
Schlafzimmer mit Doppelbett
2-Bettzimmer mit Etagenbett
Balkon

BORKUM, ca. 115 qm – bis 10 Personen
Wohnraum mit Küchenzeile
Badezimmer(2te.) separate Toilette
Schlafzimmer mit Doppelbett
3-Bettzimmer mit Einzel- & Etagenbett
5-Bettzimmer mit Einzelbetten

Empfehlungen für Ausflüge:

Aurich, ca. 15 km
Nordseeküste, ca. 25 km (z. B. Bensersiel)
Jever, ca. 30 km (JeverBrauerei)
Wilhelmshaven, ca. 40 km (Deutsches Marinemuseum)
Emden, ca. 40 km (Dat Otto Hus)
Jadebusen, ca. 50 km (z. B. Dangast)

Preise 2021 auf Anfrage


Lage




Unverbindliche Buchungsanfrage


Die Reise ist eine Klassenfahrt
   
   
   
   
   
   


  Akzeptieren Ja, ich habe die Datenschutzerklärung zur Kenntnis genommen und bin damit einverstanden, dass die von mir angegebenen Daten elektronisch erhoben und gespeichert werden. Meine Daten werden dabei nur streng zweckgebunden zur Bearbeitung und Beantwortung meiner Anfrage genutzt.