SEHR GUT AUSGESTATTETE UNTERKUNFT
liegt auf dem Gelände eines ehemaligen landwirtschaftlichen Betriebes, in der Provinz Flevoland, im Süden des Gebietes von Noordoostpolder. In dieser Gegend gibt es viele Gemüsezuchtbetriebe, als auch die „berühmten“ fußballfeldgroßen Gewächshäuser. Das moderne Gruppenhaus liegt in Sichtweite des Deiches vom Ketelermeer, einem Ausläufer vom Ijsselmeer und bietet ausreichend viel Platz für Gruppen bis max. 44 Personen.
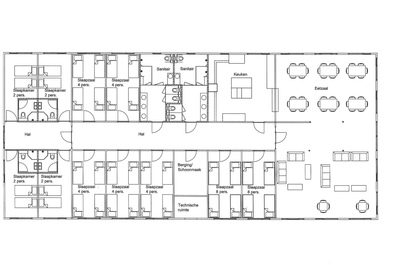
Das erste, was im Gruppenhaus auffällt, ist der ungewöhnlich breite Flur, absolut untypisch für niederländische Verhältnisse! Es gibt vier Doppelzimmer mit Einzelbetten und jeweils eigenem Bad (Dusche, WC & Waschbecken), sowie weitere fünf 4-Bettzimmer (Einzelbetten) und zwei größere Schlafzimmer (8-Bett) mit jeweils vier Etagenbetten. Für pflegebedürftige Personen, die auf ein Pflegebett angewiesen sind, können diese über einen regionalen Anbieter (kostenpflichtige) geordert werden, inklusive natürlich Bring- & Abholdienst. Weiterhin stehen behinderten Mitmenschen insgesamt zwei behindertengerechte Bäder zur Verfügung, ausgestattet jeweils mit ebenerdiger Dusche, Duschstuhl, normalen Waschbecken und einem WC mit entsprechenden Haltebügeln. (Laut uns vorliegenden Informationen sind deshalb auch „nur“ max. vier Rollstuhlfahrer angegeben; es finden aber auch weitere Rollstuhlfahrer Platz in dieser Unterkunft. Des Weiteren sind noch zwei Gruppenbäder vorhanden, jeweils mit einer abschl. Duschkabine, zwei Toiletten und einem Waschtisch mit drei Waschbecken. Der helle und freundliche Ess-/Aufenthaltsraum (ca. 130 qm), besticht in erster Hinsicht durch sein recht neuwertiges & modernes Mobiliar: eine weiße & sehr gemütliche Couchlandschaft aus pflegeleichtem Leder, sowie auch der großzügig bemessene Essbereich mit ausreichend Tischen/Stühlen. Ferner befinden sich in diesem Raum noch mehrere Stehtische, als auch einen Kicker, dass typisch niederländische Sjolbak, sowie einen Flachbildfernseher und eine kleine HiFi-Anlage. Die SV-Küche (ca. 36 qm) ist professionell und großartig ausgestattet und wartet hier sogar mit einer Kochinsel auf, in dem sich der Gasherd (4flg.) und eine Friteuse befindet. Weiterhin gibt es einen Geschirrspüler, einen Backofen, sowie einen Kühlschrank und eine Gefriertruhe, als natürlich auch die Mikrowelle, einen Tea-Maker und mehrere Kaffeemaschinen.
Der Außenbereich ist sehr großzügig bemessen und es stehen gleich drei Spielwiesen zu Verfügung: vor dem Gruppenhaus liegt der kleinste Bereich, mit einem Sandkasten, der fest installierten TT-Platte (Equipment bitte mitbringen) und einem ebenerdigen Trampolin. Im hinteren Teil befindet sich, direkt am Aufenthaltsbereich, eine große (Spiel)Wiese mit Volleyballnetz und hinter der haushohen, sehr dichten Hecke, die als Windschutz dient, gibt es eine weitere Wiese, z. B. zum Fußballspielen.
Freizeit / Ausflüge
Das Gruppenhaus liegt an einer sehr ruhigen Straße in der Nähe des Dorfes Nagele (ca. 3 km), wo es einen kleinen Lebensmittelmarkt gibt bzw. wo sich dann auch die nächstgelegene Bushaltestelle befindet. (Unter www.9292.nl finden sich ALLE Verbindungen öffentlicher Verkehrsmittel der Niederlande.)
Emmeloord, der Hauptort der Gemeinde Noordoostpolder , befindet sich gut 6 km entfernt, außerdem noch weitere Ortschaften, sowie kleinere & größere Städte, die ALLE mit dem Fahrzeug sehr gut zu erreichen sind. Die Unterkunft liegt trotz Ihrer Abgeschiedenheit, überraschenderweise daher doch recht verkehrsgünstig! In Sichtweite befindet sich der Deich vom Ketelmeer (Ijsselmeer), bis zum Schokkerstrand, einer Marina mit einigen Ferienhäuschen, Bootsverleih, Restaurant, Cafe und einer schönen Beach mit (Nordsee)Strand-Feeling, als auch einer (recht kleinen) Liegewiese, sind es mit dem Fahrrad jedoch gut 15-20 Minuten; der Weg führt durch den naheliegenden Wald und durch die Felder. Fahrräder können bei einem, vor Ort ansässigen Verleiher angemietet werden, inklusive Bring- & Abholung der gewünschten Anzahl an Rädern. Lohnenswert ist sich auch ein Trip nach Urk, einer der bekanntesten Orte am Ijsselmeer: Dieser Fischerhafen besticht durch seinen Charme im altem Ortskern und den vielen gut erhaltenen Kapitänshäusern. Weiterhin befindet sich hier auch ein weitere Badestrand und es gibt sogar eine Fährverbindung nach Enkhuizen. Für diejenigen, die sich für die Geschichte der Seefahrt interessieren, lohnt sich sicherlich ein Besuch des BATAVIA-Museums in Leylstad, mit dem originalen Nachbau der Kogge „Batavia“. Einen hohen Bekanntheitsgrad hat das Dolfinarium in Harderwijk, wo Flipper & Co. in naturbelassenen Lagunen wohnen und in Biddinghuizen kommen Adrenalinjunkies auf Ihre Kosten: WALIBIWORLD wartet hier mit einer Vielzahl von verschiedensten Achterbahnen auf seine Gäste.
